| NIVEAU | PIÈCE | SURFACE |
- Ref 31112493
- Ref MT 217
- Type Appartement
- Ville TOURNEFEUILLE
- Pièces 2
- Chambres 1
- Surface 40 m²
- Terrain NC
- Prix :
138 000 € *
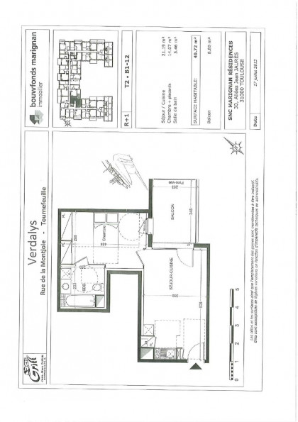
TOURNEFEUILLE - Dans une résidence de 2015 en BBC, de très bon standing, T2 de 40 m2 à vendre, au 1er étage donnant sur le jardin intérieur. Le logement comprend une entrée, un séjour avec cuisine équipée (meubles hauts et bas, 2 plaques vitrocéramiques, hotte, réfrigérateur), une chambre séparée, une salle de bain avec WC. Balcon de 8 m². Expo Sud-Ouest. Cet appartement dispose d'une place de parking en sous-sol.
Proximité immédiate du centre-ville, commodités et transports en commun. Ideal Investisseur !
Vendu LOUE : 523 € Hors charges
Prix de vente 138 000 € FAI (dont 8280 € TTC d'honoraires à la charge du vendeur)
Les informations sur les risques auxquels ce bien est exposé sont disponibles sur le site Géorisques
* Honoraires charge vendeur.
Voir le descriptif des pièces
Autour de ce bien :
Découvrez les écoles, hopitaux, commerces ... à proximité
- Bien
- 43.5912478
- 1.3477052
- /images/ggmap-marker.png
- click
-
AppartementTOURNEFEUILLE - 40 m²
Contactez
Notre agence
















