| NIVEAU | PIÈCE | SURFACE |
- Ref 31112480
- Ref 208
- Type Appartement
- Ville BLAGNAC
- Pièces 2
- Chambres 1
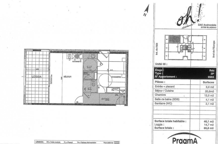
- Surface 46 m²
- Terrain NC
- Prix :
140 000 € *
Blagnac – Andromède, dans résidence sécurisée de 2016 construite sous normes BBC, à proximité immédiate d’un arrêt de Tramway ligne T1 permettant de rejoindre le centre-ville de Toulouse, accès à la Voie Lactée en 3 minutes, proche du pôle aéronautique d’Airbus et de ses sous-traitants, au rez-de-chaussée donnant sur l’intérieur de la résidence, grand T2 de 46m² comprenant une entrée avec placard, une pièce de vie spacieuse orientée Ouest avec cuisine ouverte et équipée (meubles hauts et bas, frigo TOP, hotte aspirante, plaques vitrocéramiques 2 feux) donnant accès par une baie vitrée à une loggia spacieuse de 14m², une chambre, une salle d’eau avec cabine de douche et sèche serviettes et WC séparés. Chauffage gaz et eau chaude collectifs. Une place de parking en sous-sol vient compléter ce bien.
PRIX DE VENTE : 140 000 € FAI (dont 8400 € TTC d'honoraires à la charge du vendeur)
Logement vendu loué 560 € HC.
* Honoraires charge vendeur.
- Bien
- 43.6345605
- 1.3968944
- /images/ggmap-marker.png
- click
-
AppartementBLAGNAC - 46 m²





















