| NIVEAU | PIÈCE | SURFACE |
- Ref 31112468
- Ref MT-202
- Type Appartement
- Ville CASTANET-TOLOSAN
- Pièces 2
- Chambres 1
- Surface 45 m²
- Terrain NC
- Prix :
139 000 € *
CASTANET - T2 AU DERNIER ÉTAGE AVEC TERRASSE DE 6M² ET 2 PLACES DE PARKING
À 10 mn au Sud-est de la ville de Toulouse, via les grands axes routiers, la résidence "Villa Montebello 3" offrira à ses résidents une situation privilégiée dans un cadre verdoyant.
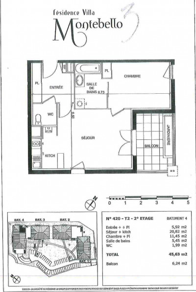
Dans cette belle résidence, vous y trouverez un logement T2 au deuxième et dernier étage avec ascenseur. Il se compose de la manière suivante :
Une entrée, une cuisine équipée meublée ouverte sur la pièce de vie. Celle-ci est exposée EST, donne accès à une belle terrasse de 6m². Le logement dispose d'une belle chambre avec placard et une salle de bain.
Deux places de parking (dont une en sous-sol et une extérieure) directement accessibles depuis l'ascenseur, viennent compléter le bien.
Proximité immédiate des commodités, moyens de transport et établissements scolaires et universitaires.
Mode de production de chauffage et eau : gaz individuel
Vendu loué à 594 € Hors charges
Prix 139 000€ FAI (dont 8 340€ TTC d'honoraires à la charge du vendeur). Idéal Investisseur !
* Honoraires charge vendeur.
Ce bien ne figure plus au catalogue car il est sous compromis.
- Bien
- 43.522526
- 1.49182
- /images/ggmap-marker.png
- click
-
AppartementCASTANET-TOLOSAN - 45 m²
















